販売中のお部屋情報
他のお部屋も販売中
フルリノベーション / 2面バルコニー / 陽当たり◎ / DINKSおすすめ / シューズインクローゼット / 価格下がりました! / アフターサービス保証付 / リノベ完成しました!
実際に物件を見たい
室内写真
玄関・廊下- シューズインクローゼット
代々木ロイヤルマンションの物件レポート
■立地
【代々木八幡駅、代々木公園駅】どちらも徒歩6分の好立地!!人気の渋谷区代々木5丁目アドレスです。山手通り沿いですので、音に敏感な人は販売住戸が出たら現地にて音確認は必要ですね。コンビニやスーパーが比較的多くない代々木5丁目エリアですが、マンション近くの代々木八幡前の信号を渡ればローソンがあり、初台坂下の信号を渡ればオーケーストアがあるので、普段のお買物に不便はなさそうです!
■物件
1978年築(昭和53年)、地上8階建て総戸数51戸のマンションです!明るめのブラウンのタイル張りの外観はヴィンテージ感があって良いですね!こちらは旧耐震の物件で築年は少し古いですが、オートロック付で2010年には宅配ボックスが新設されました!代々木公園も近いので、ペット飼育不可というのが少し残念ですかね。。
設備・備考等
・オートロック
・宅配ボックス
・エレベーター
・インターネット対応:NTT Bフレッツ、イッツコム、NURO光
・駐車場:月額 35,000円
・駐輪場:月額 800円
・バイク置場:月額 3,000円
修繕履歴
・2018年 排水管改修工事
・2012年 給水管改修工事
・2010年 エレベーター改修工事
・2010年 宅配ボックス新設
メモ
・ペット飼育:不可
・大規模修繕工事実施済み(2024年11月施工)
(学区)
・富谷小学校
・上原中学校
物件概要
- 種類
- 中古マンション
- 物件名
- 代々木ロイヤルマンション
- 所在地
- 東京都渋谷区代々木5-12-10
- 交通
- 小田急線「代々木八幡」駅徒歩6分
千代田線「代々木公園」駅徒歩6分
小田急線「代々木上原」駅徒歩10分 - 販売価格
- 7,999万円
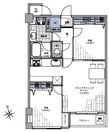
- 間取り
- 2LDK + SIC
- 専有面積
- 54.95㎡
- 管理費
- 9,900円
- 修繕積立金
- 20,661円
- 現況
- 空室
- 構造
- SRC造 8階建て
- 所在階
- 4階
- 築年月
- 1978年3月
- 総戸数
- 51戸
- 施工会社
- 日産建設
- 管理会社
- 大和ライフネクスト
- 管理形態
- 全部委託 日勤管理
- 駐車場
- 月額 35,000円
- 駐輪場
- 月額 800円
- バイク置場
- 月額 3,000円
- 取引態様
- 仲介
- ペット飼育
- 不可
- POINT
- 管理状態良好 / 3駅以上利用可 / 2沿線以上利用可 / バス便利! / 住環境押し / 公園が近くにあります / 近くにコンビニあります / 大通りが近い / 音に敏感な人に向かないかも / 旧耐震 / 大規模修繕工事済み / ペット不可 / オートロック / 宅配ボックス / エレベーター / ヴィンテージマンション / 中古マンション / 渋谷区 / 小田急線 / 代々木八幡 / 千代田線 / 代々木公園 / 代々木上原 / 富谷小学校
当物件は弊社で販売実績あります!
・ローソン 元代々木町店 (154 m)
・セブンイレブン 元代々木町店 (350 m)
・ナチュラルローソン 代々木八幡店 (410 m)
・OK(オーケー)初台店 (244 m)
・まいばすけっと 代々木八幡駅西店 (338 m)
・マルマンストア 代々木八幡店 (410 m)
・はるのおがわプレーパーク (260 m)
・代々木警察署 初台二丁目交番 (183 m)
・代々木至誠こども園 (107 m)
・元代々木保育園 (151 m)
・シオン幼稚園 (213 m)
・聖ヨゼフ保育園 (227 m)
・代々木モンテッソーリ子供の家 (273 m)
・なでしこ保育園 (310 m)
・グローバルキッズ代々木八幡園 (320 m)
・聖ヨゼフ保育園西原 (331 m)
・渋谷区立富谷小学校 (399 m)
他の物件を探す
営業時間 10:00~20:00
定休日 水曜日
京王新線「幡ヶ谷」駅北口徒歩2分
東京都渋谷区幡ヶ谷2-6-5 梅村ビル7階
-400x606.jpg)
-400x606.jpg)
-400x606.jpg)
-400x606.jpg)
-400x606.jpg)
-400x606.jpg)
-400x267.jpg)
-400x267.jpg)
-400x267.jpg)
-400x267.jpg)
-400x267.jpg)
-400x267.jpg)
-400x267.jpg)
-400x267.jpg)
-400x267.jpg)
-400x267.jpg)
.jpg)
LINEでお問い合わせ




スタッフコメント
4階部分、南向き角住戸!専有面積54.95㎡の2LDKタイプが新規内装フルリノベーションで登場!(2026年1月末)