販売中のお部屋情報
フルリノベーション / 陽当たり◎ / 角部屋 / 二面採光 / 最上階 / 1億円以上 / リビング15帖以上 / だいぶ価格下がってます / 価格下がりました! / アフターサービス保証付 / 床暖房 / 3LDKとれてます! / リノベ完成しました!
実際に物件を見たい
室内写真
玄関・廊下シティコート代々木の物件レポート
■立地
『代々木八幡』駅徒歩8分!渋谷区代々木5丁目の閑静な住宅街に立地しているので、静かな落ち着いた住環境を好む人におすすめです!山手通りに出ればコンビニもあるし、山手通りの初台坂下交差点から幡ヶ谷方面に少し行ったところにOKストアもあるので、普段のお買物にも便利です!
■物件
1992年築(平成4年)の新耐震基準適合マンションです!地上4階建て総戸数69戸の低層マンションですが、エレベーターはしっかり完備しているのでご安心ください!エントランスにはオートロック&宅配ボックスも標準装備されています。ペット飼育は不可なので、ペット可必須の人はご注意ください。
設備・備考等
・オートロック
・宅配ボックス
・エレベーター
・インターネット対応:NTT、イッツコミュニケーションズ、NTTフレッツ光ネクスト、ソニーネットワークコミュニケーションズ
・駐車場:月額 33,000円 ~ 45,000円
・駐輪場:月額 500円
修繕履歴
・2023年 玄関扉更新工事
・2022年 排水ポンプ更新工事
・2018年 エレベーター更新、防犯カメラ更新、増設、宅配ロッカー設置工事
メモ
・ペット飼育:不可
・新耐震基準適合物件
・フラット35利用可能
・大規模修繕工事実施済み(2015年施工)
・修繕積立金額:129,063,963円円(2025年1月時点)
(学区)
・幡代小学校
・代々木中学校
物件概要
- 種類
- 中古マンション
- 物件名
- シティコート代々木
- 所在地
- 東京都渋谷区代々木5-31-5
- 交通
- 小田急線「代々木八幡」駅徒歩8分
千代田線「代々木公園」駅徒歩9分
小田急線「参宮橋」駅徒歩10分 - 販売価格
- 21,990万円
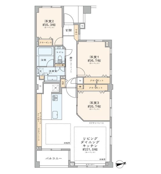
- 間取り
- 3LDK
- 専有面積
- 92.31㎡
- 管理費
- 27,500円
- 修繕積立金
- 28,250円
- 現況
- 空室
- 構造
- RC造 4階建て
- 所在階
- 4階
- 築年月
- 1992年5月
- 総戸数
- 69戸
- 施工会社
- 大林組
- 管理会社
- 三井不動産レジデンシャルサービス
- 管理形態
- 全部委託 日勤管理
- 駐車場
- 月額 33,000円 ~ 45,000円
- 駐輪場
- 月額 500円
- 取引態様
- 仲介
- ペット飼育
- 不可
- POINT
- 管理状態良好 / 修繕積立金たまってます / 3駅以上利用可 / 2沿線以上利用可 / 住環境押し / 公園が近くにあります / 近くにコンビニあります / 近くにスーパーあります / 新耐震基準適合 / 大規模修繕工事済み / フラット35 / ペット不可 / オートロック / 宅配ボックス / エレベーター / 低層マンション / 中古マンション / 渋谷区 / 小田急線 / 参宮橋 / 代々木八幡 / 千代田線 / 代々木公園
・ローソン 渋谷元代々木町店 (228 m)
・セブンイレブン 初台店 (431 m)
・ローソン 渋谷初台一丁目店 (475 m)
・OK(オーケー)初台店 (256 m)
・マルマンストア 参宮橋店 (486 m)
・まいばすけっと 代々木八幡駅西店 (528 m)
・代々木警察署 初台二丁目交番 (150 m)
・聖ヨゼフ保育園 (67 m)
・代々木至誠こども園 (96 m)
・元代々木保育園 (249 m)
・渋谷区立幡代小学校 (710 m)
・渋谷区立代々木中学校 (526 m)
他の物件を探す
営業時間 10:00~20:00
定休日 水曜日
京王新線「幡ヶ谷」駅北口徒歩2分
東京都渋谷区幡ヶ谷2-6-5 梅村ビル7階















LINEでお問い合わせ





スタッフコメント
4階最上階部分、角住戸!新規内装フルリノベーション済の専有面積92.31㎡の3LDKタイプの登場です!