販売中のお部屋情報
他のお部屋も販売中
価格価格改定17,990万円
所在階8階
専有面積74.01㎡
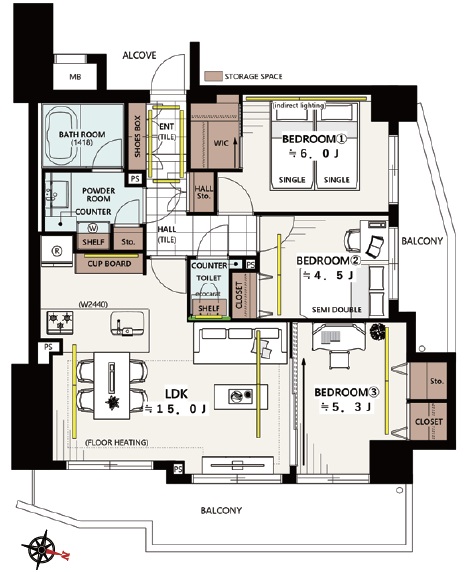
間取り3LDK + W
管理費12,300円/月
修繕積立金24,790円/月
可
部屋のPOINT
見学予約・問い合わせフルリノベーション / 2面バルコニー / 陽当たり◎ / 眺望◎ / 角部屋 / 二面採光 / 1億円以上 / リビング15帖以上 / ウォークインクローゼット / 価格下がりました! / アフターサービス保証付 / 床暖房 / 3LDKとれてます!
実際に物件を見たい
クレッセント渋谷神泉の物件レポート
■立地
話題の再開発進行中の【渋谷駅】が徒歩圏内!最寄駅は京王井の頭線『神泉』駅徒歩5分!渋谷区神泉町の旧山手通り沿いです!
■物件
1999年築(平成11年)、地上13階建て総戸数69戸の新耐震基準適合マンションです!エントランスにはオートロック・宅配ボックス完備しています!2024年7月時点で1億円以上積立金がたまっているので管理状況も悪くなさそう。前回の大規模修繕工事は、2012年に実施しているので次回はそろそろでしょうか。
設備・備考等
・オートロック
・宅配ボックス
・エレベーター
・インターネット対応:NTT、KDDI、NURO光
・駐車場:月額 32,000円 ~ 37,000円
・駐輪場:月額 300円 ~ 1,000円
・バイク置場:月額 1,500円
修繕履歴
・2023年 9月 加圧給水ポンプユニット更新工事
・2019年 9月 鉄部塗装工事
・2019年 4月 屋上防水保護塗装工事
・2018年 3月 インターホン設備更新工事
・2012年 4月 共用照明器具LED化工事
・2019年 9月 鉄部塗装工事
・2019年 4月 屋上防水保護塗装工事
・2018年 3月 インターホン設備更新工事
・2012年 4月 共用照明器具LED化工事
メモ
・ペット飼育:可(細則あり・1住戸2匹まで)
・新耐震基準適合物件
・フラット35利用可能
・大規模修繕工事実施済み(2012年施工)
・修繕積立金額:108,513,131円(2024年7月時点)
(学区)
・神南小学校
・松濤中学校
物件概要
- 種類
- 中古マンション
- 物件名
- クレッセント渋谷神泉
- 所在地
- 東京都渋谷区神泉町20-17
- 交通
- 井の頭線「神泉」駅徒歩5分
半蔵門線他「渋谷」駅徒歩10分
井の頭線「駒場東大前」駅徒歩11分 - 販売価格
- 17,990万円
- 間取り
- 3LDK + W
- 専有面積
- 74.01㎡
- 管理費
- 12,300円
- 修繕積立金
- 24,790円
- 現況
- 空室
- 構造
- SRC造 13階建て
- 所在階
- 8階
- 築年月
- 1999年7月
- 総戸数
- 69戸
- 施工会社
- 日産建設
- 管理会社
- 東急コミュニティー
- 管理形態
- 全部委託 日勤管理
- 駐車場
- 月額 32,000円 ~ 37,000円
- 駐輪場
- 月額 300円 ~ 1,000円
- バイク置場
- 月額 1,500円
- 取引態様
- 仲介
- ペット飼育
- 可
- POINT
- 管理状態良好 / 修繕積立金たまってます / 駅近 / 3駅以上利用可 / 2沿線以上利用可 / バス便利! / 公園が近くにあります / 近くにコンビニあります / 近くにスーパーあります / 大通りが近い / 新耐震基準適合 / 大規模修繕工事済み / フラット35 / ペット可 / オートロック / 宅配ボックス / エレベーター / 中古マンション / 渋谷区 / 井の頭線 / 神泉 / 駒場東大前 / 山手線 / 渋谷
(周辺施設)
・デイリーヤマザキ 神泉店 (174 m)
・ナチュラルローソン 渋谷神泉町店 (176 m)
・ローソン 神泉駅前店 (187 m)
・ファミリーマート 道玄坂上店 (264 m)
・マルエツ プチ 渋谷神泉店 (189 m)
・まいばすけっと 神泉駅前店 (223 m)
・神泉児童遊園地 (141 m)
・渋谷警察署 道玄坂上交番 (365 m)
他の物件を探す
株式会社シンプルエスト
営業時間 10:00~20:00
定休日 水曜日
京王新線「幡ヶ谷」駅北口徒歩2分
東京都渋谷区幡ヶ谷2-6-5 梅村ビル7階
営業時間 10:00~20:00
定休日 水曜日
京王新線「幡ヶ谷」駅北口徒歩2分
東京都渋谷区幡ヶ谷2-6-5 梅村ビル7階
LINEでお問い合わせ



スタッフコメント
8階部分、二面バルコニー付き角住戸!専有面積74.01㎡の3LDKタイプが新規内装フルリノベーションで登場!(2026年1月30日)