販売中のお部屋情報
フルリノベーション / 角部屋 / 二面採光 / DINKSおすすめ / だいぶ価格下がってます / ウォークインクローゼット / キッチンに窓あるよ / 価格下がりました! / アフターサービス保証付
実際に物件を見たい
ドルミ恵比寿の物件レポート
■立地
『恵比寿』駅徒歩9分、恵比寿通り沿いです!恵比寿通りを真っすぐ歩いていれば恵比寿駅着きます♪片側一車線の道路ですが、なかなかの交通量なので、音に敏感な人はご注意くださいませ!周辺には、コンビニもスーパーもあるし駅周辺には飲食店も多いので普段のお買物や外食には困らなそうですね!郵便局が近いのも助かりますよね!
■物件
1982年築(昭和57年)、地上6階建て総戸数29戸の新耐震基準適合マンションです!オートロックは付いてませんが、管理人さんは日勤管理でいます。ペット飼育可なのは、うれしいポイントですね♪
設備・備考等
・エレベーター
・インターネット対応:NTT Bフレッツ
※駐輪場(シール代150円/台)
※バイク置場(シール代150円/台)
修繕履歴
・2018年10月 2階バルコニー手摺ガラス交換工事
メモ
・ペット飼育:可(細則あり)
・新耐震基準適合物件
・フラット35利用可能
・大規模修繕工事実施済み(2003年12月施工)
・修繕積立金額:60,904,854円(2024年7月時点)
(学区)
・臨川小学校
・広尾中学校
物件概要
- 種類
- 中古マンション
- 物件名
- ドルミ恵比寿
- 所在地
- 東京都渋谷区恵比寿3-3-5
- 交通
- 山手線他「恵比寿」駅徒歩9分
日比谷線「広尾」駅徒歩9分
南北線「白金台」駅徒歩17分 - 販売価格
- 7,990万円
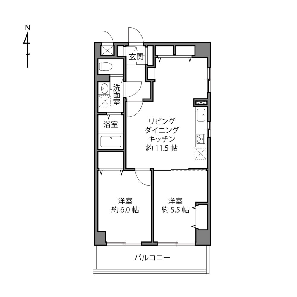
- 間取り
- 1SLDK + W
- 専有面積
- 52.38㎡
- 管理費
- 14,400円
- 修繕積立金
- 13,360円
- 現況
- 空室
- 構造
- RC造 6階建て
- 所在階
- 1階
- 築年月
- 1982年6月
- 総戸数
- 29戸
- 施工会社
- 不二建設
- 管理会社
- 日本住宅管理
- 管理形態
- 全部委託 日勤管理
- 駐輪場
- バイク置場
- 取引態様
- 仲介
- ペット飼育
- 可
- POINT
- 2沿線以上利用可 / バス便利! / 公園が近くにあります / 近くにコンビニあります / 近くにスーパーあります / 新耐震基準適合 / ペット可 / エレベーター / 中古マンション / 渋谷区 / 山手線 / 恵比寿 / 日比谷線 / 広尾
・セブンイレブン 渋谷恵比寿3丁目店 (31 m)
・ローソン 恵比寿三丁目店 (167 m)
・マルエツ プチ 白金台プラチナ通り店 (335 m)
・miniピアゴ 広尾5丁目店 (448 m)
・伊達児童遊園地 (114 m)
・渋谷警察署 恵比寿四丁目交番 (321 m)
・ハッピーデイズ・インターナショナル・プレスクール (269 m)
・TOEアカデミー 恵比寿校 (284 m)
・渋谷同胞幼稚園 (288 m)
・渋谷区立臨川小学校 (493 m)
他の物件を探す
営業時間 10:00~20:00
定休日 水曜日
京王新線「幡ヶ谷」駅北口徒歩2分
東京都渋谷区幡ヶ谷2-6-5 梅村ビル7階
LINEでお問い合わせ





スタッフコメント
1階部分、角住戸!専有面積52.38㎡の1SLDKタイプが新規内装フルリノベーションで登場!!(2025年11月)