販売中のお部屋情報
過去リノベーション履歴あるよ / 陽当たり◎ / 眺望◎ / 角部屋 / 二面採光 / 8,000万円以上 / 1億円以上 / だいぶ価格下がってます / 価格下がりました! / 玄関ポーチ付き / こだわりの個性派リノベ
室内写真
玄関・廊下オープンレジデンシア目黒青葉台テラス(A・B棟)の物件レポート
■立地
【中目黒・代官山】が生活圏の目黒区青葉台3丁目の高台に立地しています!最寄駅は『神泉』駅徒歩9分です。話題の再開発進行中の【渋谷駅】も徒歩圏内ですよ♪近くにコンビニやスーパーもあるので普段の生活にも不便はなさそうです。住宅街にあるので、静かな落ち着いた雰囲気を好む方にはおすすめですが、坂が多いエリアでもあるのでご注意を!
■物件
2015年築(平成27年)、地上6階建て総戸数29戸の新耐震基準適合です!オープンハウスの【オープンレジデンシア】シリーズです!築浅ということもあり、共用部はまだまだキレイです♪もちろん、エントランスにはオートロック付きでセキュリティー面でも安心です!不在時に助かる宅配ボックスも完備していますよ!
設備・備考等
・オートロック
・宅配ボックス
・エレベーター
・インターネット対応:アルテリア(一括)、NTT
・駐車場:月額 20,000円 ~ 28,000円
・駐輪場:月額 100円 ~ 200円
・バイク置場:月額 2,000円
修繕履歴
メモ
・ペット飼育:可(細則あり・1住戸2匹まで)
・新耐震基準適合物件
・フラット35利用可能
・修繕積立金額:3,427,156円(2025年8月時点)
※ペット(体長60㌢15㌕以下)
(学区)
・菅刈小学校
・第一中学校
物件概要
- 種類
- 中古マンション
- 物件名
- オープンレジデンシア目黒青葉台テラス(A・B棟)
- 所在地
- 東京都目黒区青葉台3-5-7
- 交通
- 井の頭線「神泉」駅徒歩9分
田園都市線「池尻大橋」駅徒歩10分
山手線他「渋谷」駅徒歩15分
東横線他「中目黒」駅徒歩17分 - 販売価格
- 18,980万円
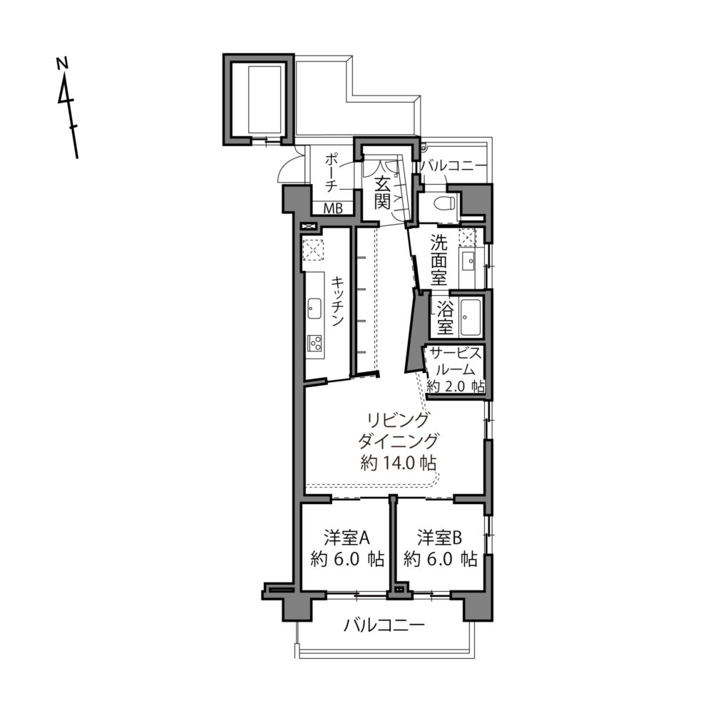
- 間取り
- 2SLDK
- 専有面積
- 81.30㎡
- 管理費
- 18,500円
- 修繕積立金
- 20,300円
- その他費用
- 1,828円
- 現況
- 空室
- 構造
- RC造 6階建て
- 所在階
- 2階
- 築年月
- 2015年9月
- 総戸数
- 29戸
- 施工会社
- 古久根建設
- 管理会社
- 東急コミュニティー
- 管理形態
- 全部委託 巡回管理
- 駐車場
- 月額 20,000円 ~ 28,000円
- 駐輪場
- 月額 100円 ~ 200円
- バイク置場
- 月額 2,000円
- 取引態様
- 仲介
- ペット飼育
- 可
- POINT
- 管理状態良好 / 2沿線以上利用可 / バス便利! / 住環境押し / 公園が近くにあります / 近くにコンビニあります / 近くにスーパーあります / 築浅 / 新耐震基準適合 / フラット35 / ペット可 / オートロック / 宅配ボックス / エレベーター / 中古マンション / 目黒区 / 井の頭線 / 神泉 / 山手線 / 渋谷 / 池尻大橋
・ファミリーマート 目黒青葉台四丁目店 (180 m)
・セブンイレブン 目黒青葉台3丁目店 (200 m)
・業務スーパー 目黒大橋店 (550 m)
・ライフ 目黒大橋店 (550 m)
・大坂緑地 (350 m)
・目黒警察署 大橋交番 (650 m)
・野のゆり保育園 (650 m)
・キッズハウス池尻大橋 (700 m)
・菅刈保育園 (700 m)
・学栄ナーサリー 目黒青葉台保育園 (750 m)
・目黒区立菅刈小学校 (350 m)
・目黒区立第一中学校 (900 m)
他の物件を探す
営業時間 10:00~20:00
定休日 水曜日
京王新線「幡ヶ谷」駅北口徒歩2分
東京都渋谷区幡ヶ谷2-6-5 梅村ビル7階
.jpg)
-400x600.jpg)
-400x600.jpg)
-400x600.jpg)
-400x600.jpg)
-400x267.jpg)
-400x267.jpg)
-400x600.jpg)
-400x600.jpg)
-400x267.jpg)
-400x267.jpg)
-400x267.jpg)
-400x267.jpg)
-400x267.jpg)
-400x267.jpg)
.jpg)
-400x600.jpg)
-400x600.jpg)
-400x600.jpg)
-400x600.jpg)
LINEでお問い合わせ







スタッフコメント
2階部分、南向き角住戸!専有面積81.30㎡の2SLDKタイプです!2022年10月にこだわりのフルリノベ履歴あり!