朝日サテライト原宿

販売中のお部屋情報

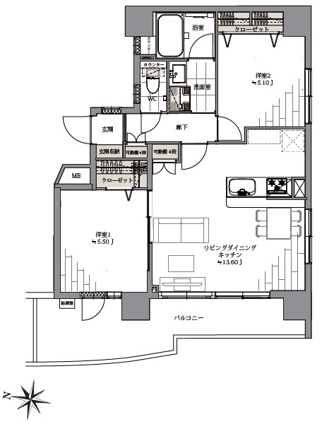
朝日サテライト原宿-間取り
価格14,980万円
所在階4階
専有面積56.26㎡
間取り2LDK
管理費19,900円/月
修繕積立金16,000円/月
部屋のPOINT

フルリノベーション / 陽当たり◎ / 角部屋 / 二面採光 / DINKSおすすめ / 8,000万円以上 / 1億円以上 / キッチンに窓あるよ / アフターサービス保証付

見学予約・問い合わせ
staff-icon

スタッフコメント

4階部分、角住戸!専有面積56.26㎡の2LDKタイプが新規内装フルリノベーションで登場!(2026年7月末)

・内装フルリノベーション
・見学は物件前待ち合わせで!いつでもOK!
・販売スタート価格 | 14,980万円

朝日サテライト原宿の物件レポート

■立地
『北参道』駅徒歩4分の駅近です!渋谷区千駄ヶ谷3丁目の明治通りから少し中に入ったところに立地しているので、音は拾いにくいと思います。近くにはコンビニやスーパーもあるので、普段のお買物にも便利です!

■物件
1998年築(平成10年)、地上10階建て総戸数20戸の新耐震基準適合マンションです!エントランスにはオートロック付きで安心のセキュリティ。2018年には宅配ボックスが新設され、不在時にも便利です!ペット飼育も可能です!

設備・備考等

・オートロック

・宅配ボックス

・エレベーター

・インターネット対応:NTT

・駐車場:月額 32,000円 ~ 40,000円

・駐輪場:月額 200円 ~ 800円

・バイク置場:月額 2,000円 ~ 3,000円

修繕履歴

・2025年 8月 給排水設備等改修工事
・2018年 8月 宅配ボックス設置工事
・2015年 4月 エントランス改修工事
・2010年 1月 直結給水ブースタポンプ交換工事
・2008年 6月 共用鉄部塗装工事

メモ

・ペット飼育:可(細則あり)

・新耐震基準適合物件

・フラット35利用可能

・大規模修繕工事実施済み(2023年12月施工)

(学区)
・千駄谷小学校
・原宿外苑中学校

物件概要

種類
中古マンション
物件名
朝日サテライト原宿
所在地
東京都渋谷区千駄ヶ谷3-1-8
交通
副都心線「北参道」駅徒歩4分
山手線「原宿」駅徒歩8分
千代田線「明治神宮前」駅徒歩9分
販売価格
14,980万円
間取り
2LDK
専有面積
56.26㎡
管理費
19,900円
修繕積立金
16,000円
現況
空室
構造
SRC造 10階建て
所在階
4階
築年月
1998年2月
総戸数
20戸
施工会社
西松建設
管理会社
朝日管理
管理形態
全部委託 巡回管理
駐車場
月額 32,000円 ~ 40,000円
駐輪場
月額 200円 ~ 800円
バイク置場
月額 2,000円 ~ 3,000円
取引態様
仲介
ペット飼育
POINT
駅近 / 3駅以上利用可 / 2沿線以上利用可 / バス便利! / 住環境押し / 公園が近くにあります / 近くにコンビニあります / 近くにスーパーあります / 新耐震基準適合 / 大規模修繕工事済み / フラット35 / ペット可 / オートロック / 宅配ボックス / エレベーター / 中古マンション / 渋谷区 / 千代田線 / 山手線 / 原宿 / 副都心線 / 北参道
(周辺施設)

・ミニストップ 千駄ヶ谷3丁目店 (67 m)
・セブンイレブン 原宿外苑店 (120 m)
・OK(オーケー)千駄ヶ谷店 (143 m)
・まいばすけっと 千駄ヶ谷3丁目店 (184 m)
・千駄ヶ谷児童遊園地 (252 m)
・渋谷区立千駄谷なかよし園千駄谷幼稚園舎 (158 m)
・渋谷区立千駄谷なかよし園千駄ヶ谷保育園舎 (194 m)
・鳩の森八幡幼稚園 (338 m)
・渋谷区立千駄谷小学校 (158 m)

GoogleMapで見る
株式会社シンプルエスト 東京都渋谷区幡ヶ谷2-6-5 梅村ビル7階
営業時間 10:00~20:00
定休日 水曜日

他の物件を探す

来店して相談したい
見学予約 電話をかける 会員登録 MYリスト