販売中のお部屋情報
価格14,490万円
所在階2階
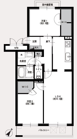
専有面積63.72㎡
間取り2LDK + W
管理費19,980円/月
修繕積立金14,130円/月
不可
部屋のPOINT
見学予約・問い合わせフルリノベーション / 陽当たり◎ / 角部屋 / 二面採光 / 1億円以上 / ウォークインクローゼット / アフターサービス保証付 / リノベ完成しました!
実際に物件を見たい
神宮前プリンスハイツの物件レポート
■立地
東京メトロ銀座線、千代田線、半蔵門線が利用できる『表参道』駅徒歩6分!渋谷区神宮前3丁目の外苑西通りから少し中に入ったところに立地しています!コンビニやスーパーが近いので、普段のお買物に便利なのはもちろんですが、少し歩けば表参道もあるし、休日のショッピングや外食も楽しめそうですね!それでいて、第一種住居地域に建っている住宅街なので、比較的落ち着いた住環境です!
■物件
1984年築(昭和59年)の新耐震基準適合マンションです!地上4階建て総戸数12戸の低層マンションにつきエレベーターはございませんので、ご注意を。今の時代には欠かせない宅配ボックスが完備されているのは助かりますね!
設備・備考等
・宅配ボックス
・駐輪場:
無償
※駐輪場1台目は無償、2台目以降月額500円
修繕履歴
・2017年 給水方式変更工事
・2012年 インターホン設備更新工事
・2012年 インターホン設備更新工事
メモ
・ペット飼育:不可
・新耐震基準適合物件
・フラット35利用可能
・大規模修繕工事実施済み(2012年施工)
・修繕積立金額:30,640,614円(2025年6月時点)
(学区)
・神宮前小学校
・原宿外苑中学校
物件概要
- 種類
- 中古マンション
- 物件名
- 神宮前プリンスハイツ
- 所在地
- 東京都渋谷区神宮前3-1-12
- 交通
- 半蔵門線他「表参道駅」徒歩6分
銀座線「外苑前」駅徒歩7分
千代田線「明治神宮前」駅徒歩12分
山手線「原宿」駅徒歩14分 - 販売価格
- 14,490万円
- 間取り
- 2LDK + W
- 専有面積
- 63.72㎡
- 管理費
- 19,980円
- 修繕積立金
- 14,130円
- 現況
- 空室
- 構造
- RC造 4階建て
- 所在階
- 2階
- 築年月
- 1984年3月
- 総戸数
- 12戸
- 施工会社
- 竹中工務店
- 管理会社
- 王子不動産
- 管理形態
- 全部委託 巡回管理
- 駐輪場
- 無償
- 取引態様
- 仲介
- ペット飼育
- 不可
- POINT
- 3駅以上利用可 / 2沿線以上利用可 / 住環境押し / 公園が近くにあります / 近くにコンビニあります / 近くにスーパーあります / 新耐震基準適合 / 大規模修繕工事済み / フラット35 / ペット不可 / 宅配ボックス / エレベーターなし / 低層マンション / 中古マンション / 渋谷区 / 千代田線 / 表参道 / 山手線 / 原宿 / 外苑前
(周辺施設)
・ローソン 神宮前三丁目店 (77 m)
・ファミリーマート 神宮前三丁目店 (124 m)
・セブンイレブン 北青山青山通り店 (186 m)
・ビオセボン 外苑西通り店 (146 m)
・OMO KINOKUNIYA エチカ表参道店 (476 m)
・神宮前三丁目児童遊園地 (132 m)
・原宿警察署 原宿地域安全センター (107 m)
・原宿幼稚園 (154 m)
・渋谷区立 神宮前小学校(504 m)
他の物件を探す
株式会社シンプルエスト
営業時間 10:00~20:00
定休日 水曜日
京王新線「幡ヶ谷」駅北口徒歩2分
東京都渋谷区幡ヶ谷2-6-5 梅村ビル7階
営業時間 10:00~20:00
定休日 水曜日
京王新線「幡ヶ谷」駅北口徒歩2分
東京都渋谷区幡ヶ谷2-6-5 梅村ビル7階
LINEでお問い合わせ





スタッフコメント
・新規内装フルリノベーション(2025年11月)
・専有面積63.72㎡、2LDK
・各洋室にウォークインクローゼット付き
※エレベーターなし2階部分