販売中のお部屋情報

価格価格改定15,480万円
所在階5階
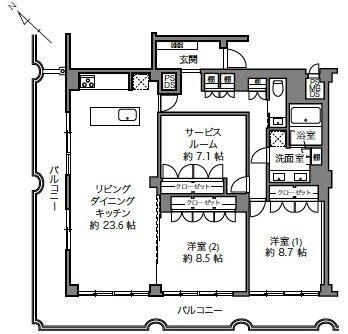
専有面積114.32㎡
間取り2SLDK
管理費22,100円/月
修繕積立金29,010円/月
可
部屋のPOINT
見学予約・問い合わせフルリノベーション / 100平米オーバー / L字バルコニー / 陽当たり◎ / 角部屋 / 二面採光 / 1億円以上 / キッチンに窓あるよ / 価格下がりました! / アフターサービス保証付
実際に物件を見たい
代々木ハイライズの物件レポート
■立地
渋谷区代々木4丁目の閑静な住宅街に立地していますので、静かな落ち着いた住環境を好む人におすすめです!
最寄駅は『初台』駅徒歩5分で、『参宮橋』駅も徒歩8分で利用できます!すぐ近くの山手通りまで出れば、バスも通っていますので【渋谷駅】までダイレクトアクセス可能です!
■物件
1974年築(昭和49年)、地上6階建て総戸数24戸のマンションです!定期的に共用部の修繕も行っているのでマンションのコンディションも良好です!前回の大規模修繕工事は2013年に実施しています。
また、エントランスにはオートロックも付いておりますので、女性も安心のセキュリティ。ペット飼育可能なのもポイントです!
設備・備考等
・オートロック
・エレベーター
・駐車場:月額 18,000円 ~ 30,000円
・駐輪場:年額 2,400円
・バイク置場:月額 5,000円
修繕履歴
・2016年 エレベーター工事
・2007年 給排水管更新工事
・2007年 給排水管更新工事
メモ
・ペット飼育:可(細則あり)
・大規模修繕工事実施済み(2013年施工)
(学区)
・代々木山谷小学校
・代々木中学校
物件概要
- 種類
- 中古マンション
- 物件名
- 代々木ハイライズ
- 所在地
- 東京都渋谷区代々木4-26-10
- 交通
- 京王新線「初台」駅徒歩5分
小田急線「参宮橋」駅徒歩8分
山手線他「新宿」駅徒歩12分 - 販売価格
- 15,480万円
- 間取り
- 2SLDK
- 専有面積
- 114.32㎡
- 管理費
- 22,100円
- 修繕積立金
- 29,010円
- 現況
- 空室
- 構造
- RC造 6階建て
- 所在階
- 5階
- 築年月
- 1974年4月
- 総戸数
- 24戸
- 施工会社
- 大林組
- 管理会社
- 日鉄コミュニティ
- 管理形態
- 全部委託 日勤管理
- 駐車場
- 月額 18,000円 ~ 30,000円
- 駐輪場
- 年額 2,400円
- バイク置場
- 月額 5,000円
- 取引態様
- 仲介
- ペット飼育
- 可
- POINT
- 管理状態良好 / 駅近 / 2沿線以上利用可 / バス便利! / 住環境押し / 公園が近くにあります / 近くにコンビニあります / 近くにスーパーあります / 大規模修繕工事済み / ペット可 / オートロック / エレベーター / 中古マンション / 渋谷区 / 京王線・新線 / 初台 / 小田急線 / 参宮橋 / 代々木山谷小学校
(周辺施設)
他の物件を探す


株式会社シンプルエスト
営業時間 10:00~20:00
定休日 水曜日
京王新線「幡ヶ谷」駅北口徒歩2分
東京都渋谷区幡ヶ谷2-6-5 梅村ビル7階
営業時間 10:00~20:00
定休日 水曜日
京王新線「幡ヶ谷」駅北口徒歩2分
東京都渋谷区幡ヶ谷2-6-5 梅村ビル7階
代々木ハイライズ
スタッフコメント
・新規内装フルリノベーション(2025年9月)
・専有面積114.32㎡、2SLDK
・5階部分、角住戸