販売中のお部屋情報
価格価格改定18,890万円
所在階6階
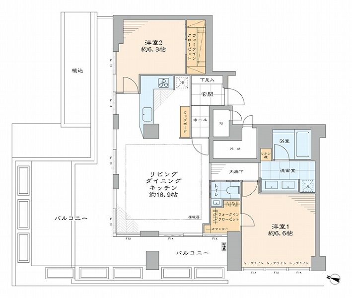
専有面積79.08㎡
間取り2LDK + W
管理費12,880円/月
修繕積立金19,700円/月
可
部屋のPOINT
見学予約・問い合わせフルリノベーション / 2面バルコニー / 陽当たり◎ / 角部屋 / 二面採光 / 最上階 / 8,000万円以上 / 1億円以上 / リビング15帖以上 / ウォークインクローゼット / アフターサービス保証付 / リノベ完成しました!
実際に物件を見たい
室内写真
玄関・廊下スカイプラザ赤坂の物件レポート
■立地
東京メトロ半蔵門線、銀座線、都営大江戸線が利用できる『青山一丁目』駅から徒歩5分の駅近立地!住所は港区赤坂8丁目で山王病院裏手の住宅街に位置する物件です。
■物件
スカイプラザ赤坂は福田組分譲×福田組施工(鹿島建設が総合監理)の1978年築、地上5階建て総戸数75邸の中古マンションです。
管理状態の良いヴィンテージ感満載の物件です。エントランスセキュリティは夜間オートロック対応!建物中央に設けられた吹き抜けを囲むようにロの字型に配置された住戸が特徴です。
エレベーターは2基完備。直近の大規模修繕工事は2023年に実施済みです!
設備・備考等
・オートロック
・宅配ボックス
・エレベーター
・インターネット対応:(NTT・KDDI)
・駐車場:月額 30,000円
・駐輪場:月額 500円
修繕履歴
2025年 8月 エレベーターリニューアル工事
2024年11月 エントランス改修工事
2023年10月 大規模修繕工事
2024年11月 エントランス改修工事
2023年10月 大規模修繕工事
メモ
・ペット飼育:可(細則あり)
・フラット35利用可能
・大規模修繕工事実施済み(2023年施工)
・修繕積立金額:76,308,327円(2025年10月時点)
物件概要
- 種類
- 中古マンション
- 物件名
- スカイプラザ赤坂
- 所在地
- 東京都港区赤坂8-6-27
- 交通
- 半蔵門線他「青山一丁目」駅徒歩5分
千代田線「乃木坂」駅徒歩8分 - 販売価格
- 18,890万円
- 間取り
- 2LDK + W
- 専有面積
- 79.08㎡
- 管理費
- 12,880円
- 修繕積立金
- 19,700円
- その他費用
- 2,681円
- 現況
- 空室
- 構造
- RC造 5階建て
- 所在階
- 6階
- 築年月
- 1978年11月
- 総戸数
- 75戸
- 施工会社
- 福田組
- 管理会社
- 合人社計画研究所
- 管理形態
- 全部委託 日勤管理
- 駐車場
- 月額 30,000円
- 駐輪場
- 月額 500円
- 取引態様
- 仲介
- ペット飼育
- 可
- POINT
- 管理状態良好 / 駅近 / 2沿線以上利用可 / 住環境押し / 近くにコンビニあります / 近くにスーパーあります / 旧耐震 / フラット35 / ペット可 / オートロック / 宅配ボックス / エレベーター / ヴィンテージマンション / 中古マンション / 港区 / 千代田線 / 乃木坂 / 大江戸線 / 青山一丁目
(周辺施設)
他の物件を探す
株式会社シンプルエスト
営業時間 10:00~20:00
定休日 水曜日
京王新線「幡ヶ谷」駅北口徒歩2分
東京都渋谷区幡ヶ谷2-6-5 梅村ビル7階
営業時間 10:00~20:00
定休日 水曜日
京王新線「幡ヶ谷」駅北口徒歩2分
東京都渋谷区幡ヶ谷2-6-5 梅村ビル7階















LINEでお問い合わせ


スタッフコメント
最上階角部屋 約12mのワイドスパン!専有面積79㎡・収納豊富なWIC付。新規内装フルリノベーション済み。リビング床はヘリンボーンを採用。約36㎡の広々バルコニーもとても魅力的です!