販売中のお部屋情報
フルリノベーション / 陽当たり◎ / シングルおすすめ / DINKSおすすめ / だいぶ価格下がってます / ウォークインクローゼット / 価格下がりました! / アフターサービス保証付 / リノベ完成しました!
実際に物件を見たい
室内写真
玄関・廊下 浴室・洗面台・トイレ松濤ホームズの物件レポート
■立地
『神泉』駅徒歩9分!渋谷区松濤2丁目の高級住宅街に立地しています!山手通りから少し中に入っているので、音は拾いにくいと思います!歩くのが好きな人であれば、代々木公園や話題の大規模再開発が進行中の渋谷駅へも徒歩圏内です!
■物件
1998年築(平成10年)、総戸数28戸の新耐震基準適合マンションです!地上4階建ての低層マンションですが、しっかりエレベーターも完備しています!エントランスにはオートロックも付いていて、セキュリティー面でも安心です!今の時代には欠かせない不在時に便利な宅配ボックスも完備していますよ!ペット飼育も可能です!
設備・備考等
・オートロック
・宅配ボックス
・エレベーター
・インターネット対応:イッツコム
・駐車場:月額 30,000円
・駐輪場:月額 300円 ~ 500円
・バイク置場:月額 2,000円
メモ
・ペット飼育:可(細則あり)
・新耐震基準適合物件
・フラット35利用可能
・大規模修繕工事実施済み(2024年10月施工)
・修繕積立金額:11,097,996円(2025年9月時点)
(学区)
・神南小学校
・松濤中学校
物件概要
- 種類
- 中古マンション
- 物件名
- 松濤ホームズ
- 所在地
- 東京都渋谷区松濤2-2-8
- 交通
- 井の頭線「神泉」駅徒歩9分
井の頭線「駒場東大前」駅徒歩12分
千代田線「代々木公園」駅徒歩13分
山手線他「渋谷」駅徒歩16分 - 販売価格
- 6,998万円
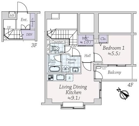
- 間取り
- 1LDK + W
- 専有面積
- 47.28㎡
- 管理費
- 11,820円
- 修繕積立金
- 13,690円
- 現況
- 空室
- 構造
- RC造 4階建て
- 所在階
- 4階
- 築年月
- 1998年5月
- 総戸数
- 28戸
- 施工会社
- 太平工業
- 管理会社
- エムエムエスマンションマネージメントサービス
- 管理形態
- 全部委託 通勤管理
- 駐車場
- 月額 30,000円
- 駐輪場
- 月額 300円 ~ 500円
- バイク置場
- 月額 2,000円
- 取引態様
- 仲介
- ペット飼育
- 可
- POINT
- 管理状態良好 / バス便利! / 住環境押し / 公園が近くにあります / 近くにコンビニあります / 新耐震基準適合 / 大規模修繕工事済み / フラット35 / ペット可 / オートロック / 宅配ボックス / エレベーター / 低層マンション / 中古マンション / 渋谷区 / 井の頭線 / 神泉
・セブンイレブン 神山店 (171 m)
・セブンイレブン 渋谷富ヶ谷2丁目店 (453 m)
・まいばすけっと 駒場1丁目店 (454 m)
・まいばすけっと 駒場東大前駅前店 (586 m)
・鍋島松濤公園 (287 m)
・松村幼稚園 (105 m)
・渋谷区立大向保育園 (469 m)
・富ヶ谷ちとせ保育園 (529 m)
・富ケ谷保育園 (538 m)
・渋谷区立松濤中学校 (191 m)
他の物件を探す
営業時間 10:00~20:00
定休日 水曜日
京王新線「幡ヶ谷」駅北口徒歩2分
東京都渋谷区幡ヶ谷2-6-5 梅村ビル7階













LINEでお問い合わせ





スタッフコメント
4階部分、シングルにおすすめの専有面積47.28㎡の1LDKが新規内装フルリノベーション済で登場です!玄関は3階です!