販売中のお部屋情報
フルリノベーション / 2面バルコニー / 陽当たり◎ / 角部屋 / 二面採光 / 1億円以上 / だいぶ価格下がってます / 価格下がりました! / アフターサービス保証付 / 3LDKとれてます!
実際に物件を見たい
三光坂ホームズの物件レポート
■立地
『白金高輪』駅徒歩6分!三光坂下交差点から三光坂を少しのぼったところにあるので、坂が苦手・・・という方はご注意ください。近くにはコンビニもあるし、普段の生活に不便はなさそうですよね。徒歩圏内に大きい病院があるのも安心材料のひとつですよね!小中一貫校の白金の丘学園も徒歩圏内で子育て世代のファミリー層にオススメです。
■物件
1984年築(昭和59年)、地上7階建て総戸数49戸の新耐震基準に適合しているマンションです!エントランスにはオートロック&宅配ボックスが付いてます♪昭和築でペット飼育可というのも珍しくうれしいポイントですよね!共用廊下はプライバシー性に優れた内廊下設計で安心です。
■土地権利
敷地権利が旧法地上権(期間:2044年12月23日まで)です。旧法地上権はあまり聞きなれない言葉なので、敬遠する方もいるかもしれませんが、期間後も余程の事がない限り、建物が存続する限り継続されるものですし、賃借権とは違い譲渡の際に地主の承諾も不要です。よく分からないという方は、スタッフまでお気軽にご質問下さい。
設備・備考等
・オートロック
・宅配ボックス
・エレベーター
・駐輪場:月額 1,200円
・プライバシー性の高い内廊下設計
修繕履歴
・2021年2月 自動ドア部品交換工事
・2014年3月 給水管更生工事
・2014年1月 インターホン設備更新工事
メモ
・ペット飼育:可(細則あり)
・新耐震基準適合物件
・フラット35利用可能
・大規模修繕工事実施済み(2001年6月施工)
・修繕積立金額:69,647,055円(2023年7月時点)
(学区)
・白金の丘学園(小中一貫校)
物件概要
- 種類
- 中古マンション
- 物件名
- 三光坂ホームズ
- 所在地
- 東京都港区白金2-1-41
- 交通
- 三田線「白金高輪」駅徒歩6分
南北線「白金台」駅徒歩10分
日比谷線「広尾」駅徒歩18分
- 販売価格
- 11,280万円
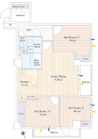
- 間取り
- 3LDK
- 専有面積
- 71.38㎡
- 管理費
- 27,010円
- 修繕積立金
- 24,500円
- 現況
- 空室
- 構造
- RC造 7階建て
- 所在階
- 2階
- 築年月
- 1984年11月
- 総戸数
- 49戸
- 施工会社
- 大日本土木
- 管理会社
- 大和ライフネクスト
- 管理形態
- 全部委託
- 駐輪場
- 月額 1,200円
- 取引態様
- 仲介
- ペット飼育
- 可
- POINT
- 管理状態良好 / 修繕積立金たまってます / 2沿線以上利用可 / 住環境押し / 近くにコンビニあります / 近くにスーパーあります / 新耐震基準適合 / 大規模修繕工事済み / フラット35 / ペット可 / オートロック / 宅配ボックス / エレベーター / 内廊下設計 / 中古マンション / 港区 / 南北線 / 白金台 / 白金高輪 / 三田線
セブンイレブン 港区白金1丁目南店 (210 m)
ローソン 白金三光店 (248 m)
クイーンズ伊勢丹白金高輪店 (375 m)
肉のハナマサ 南麻布店 (496 m)
ピーコックストア 高輪魚籃坂店 (565 m)
マルエツ プチ 白金台店 (717 m)
ピーコックストア 三田伊皿子店 (726 m)
港区立小中一貫教育校白金の丘学園白金の丘小学校 (309 m)
さわやか保育園・白金高輪 (152 m)
白金キッズワールド (216 m)
他の物件を探す
営業時間 10:00~20:00
定休日 水曜日
京王新線「幡ヶ谷」駅北口徒歩2分
東京都渋谷区幡ヶ谷2-6-5 梅村ビル7階
LINEでお問い合わせ





スタッフコメント
・新規内装フルリノベーション(2025年12月)
・専有面積71.38㎡、3LDK
・2階部分、二面バルコニー付き角住戸