販売中のお部屋情報
フルリノベーション / ルーバル付 / 陽当たり◎ / 眺望◎ / 角部屋 / 二面採光 / シングルおすすめ
実際に物件を見たい
イトーピア幡ヶ谷の物件レポート
■立地
幡ヶ谷エリアではなかなか出てきにくい甲州街道南側エリア、渋谷区西原1丁目アドレス!幡ヶ谷6分♪初台も代々木上原も徒歩圏内ですね!近くに郵便局もあるし、郵便局の中にローソンも入っているし、郵便局前の道を代々木八幡方面に下ればオーケーストアもあります♪便利ですね!ただ、オーケーストアに行くまで坂になっているので「毎回坂は嫌だなぁ」という人は、スーパーは幡ヶ谷で済ませてください!幡ヶ谷はどこに行こうか悩むくらいスーパーがあるので!マンションの南側は渋谷区スポーツセンターがございます。
■物件
1995年築(平成7年)、地上6階建て総戸数42戸の新耐震基準適合マンションです!伊藤忠商事旧分譲の『イトーピア』シリーズです!オートロックも付いているし、管理人さんも日勤管理で見守ってくれているので安心です!甲州街道から少し中に入ったところにあるので、音問題も心配なさそうですね!
設備・備考等
・オートロック
・宅配ボックス
・エレベーター
・インターネット対応:NTT、イッツコミュニケーションズ
・駐車場:月額 28,000円 ~ 33,000円
・駐輪場:月額 500円
修繕履歴
・2021年 自動火災報知設備 受信機更新
・2015年 共用部照明LED交換工事
・2014年 インターホンリニューアル工事
メモ
・ペット飼育:不可
・新耐震基準適合物件
・フラット35利用可能
・大規模修繕工事実施済み(2023年施工)
・修繕積立金額:121,970,881円(2025年2月時点)
(学区)
・西原小学校
・代々木中学校
物件概要
- 種類
- 中古マンション
- 物件名
- イトーピア幡ヶ谷
- 所在地
- 東京都渋谷区西原1-36-6
- 交通
- 京王新線「幡ヶ谷」駅徒歩6分
京王新線「初台」駅徒歩9分
小田急線「代々木上原」駅徒歩13分 - 販売価格
- 4,699万円
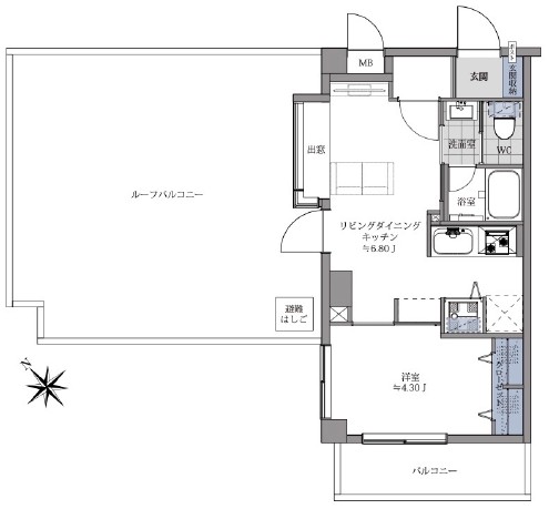
- 間取り
- 1LDK
- 専有面積
- 30.40㎡
- 管理費
- 6,700円
- 修繕積立金
- 14,107円
- その他費用
- 700円
- 現況
- 空室
- 構造
- RC造 6階建て
- 所在階
- 5階
- 築年月
- 1995年1月
- 総戸数
- 42戸
- 施工会社
- 佐藤秀工務店
- 管理会社
- 伊藤忠アーバンコミュニティ
- 管理形態
- 全部委託 日勤管理
- 駐車場
- 月額 28,000円 ~ 33,000円
- 駐輪場
- 月額 500円
- 取引態様
- 仲介
- ペット飼育
- 不可
- POINT
- 管理状態良好 / 3駅以上利用可 / 2沿線以上利用可 / バス便利! / 住環境押し / 公園が近くにあります / 近くにコンビニあります / 近くにスーパーあります / 新耐震基準適合 / 大規模修繕工事済み / フラット35 / ペット可 / オートロック / エレベーター / 中古マンション / 渋谷区 / 京王線・新線 / 初台 / 幡ヶ谷 / 小田急線 / 千代田線 / 代々木上原
・ローソンJPローソン代々木局店 (101 m)
・ファミリーマート 渋谷本町一丁目店 (175 m)
・Santoku(サントク) 幡ヶ谷店 (404 m)
・グルメシティ関東幡ケ谷店 (416 m)
・ダイエー幡ヶ谷店 (436 m)
・まいばすけっと 初台駅西店 (437 m)
・OK(オーケー)初台店 (574 m)
・玉川上水旧水路 西原緑道 (111 m)
・西原一丁目公園 (129 m)
・代々木警察署 (326 m)
・渋谷区初台出張所 (414 m)
・渋谷区西原出張所 (414 m)
他の物件を探す
営業時間 10:00~20:00
定休日 水曜日
京王新線「幡ヶ谷」駅北口徒歩2分
東京都渋谷区幡ヶ谷2-6-5 梅村ビル7階


LINEでお問い合わせ





スタッフコメント
≪久しぶりの登場!≫
5階部分、21.85㎡のルーフバルコニー付き角住戸!シングルにおすすめの専有面積30.40㎡の1LDKタイプが新規内装フルリノベーションで登場!(2026年1月末)