販売中のお部屋情報
価格価格改定18,200万円
所在階2階
専有面積81.10㎡
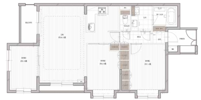
間取り3LDK
管理費24,100円/月
修繕積立金46,530円/月
可
部屋のPOINT
見学予約・問い合わせフルリノベーション / 陽当たり◎ / 角部屋 / 二面採光 / 1億円以上 / リビング15帖以上 / 価格下がりました! / アフターサービス保証付 / 床暖房 / 3LDKとれてます! / リノベ完成しました!
実際に物件を見たい
ディアナコート松濤の物件レポート
■立地
神山町・松濤は屈指の高級住宅街!最寄りは「代々木公園駅」「代々木八幡駅」徒歩10分!少し頑張れば渋谷駅も徒歩でアクセスできちゃう渋谷区神山町アドレス。山手通りから少し中に入ったところに位置しているから、そこまで音を気にしなくても大丈夫かも。
■物件
物件は1997年築(平成9年)、地上4階建て総戸数20戸の低層レジデンス!モリモト旧分譲の『ディアナコート』シリーズです♪エントランスにはオートロックがついていて、管理人さんも日勤管理で見守ってくれるので安心です!もちろん、不在時に助かる宅配ボックスも完備!4階建ての低層スタイルだけど、エレベーターもしっかり完備してますよ!ペット飼育可なのもうれしい㌽‼ですね♪
設備・備考等
・オートロック
・宅配ボックス
・エレベーター
・駐車場:月額 35,000円
・駐輪場:
無償
メモ
・ペット飼育:可(細則あり・1住戸2匹まで)
・新耐震基準適合物件
・フラット35利用可能
・修繕積立金額:55,102,380円(2022年11月時点)
※ペット(体長30㌢以下、1匹200円/月)
(学区)
・神南小学校
・松濤中学校
物件概要
- 種類
- 中古マンション
- 物件名
- ディアナコート松濤
- 所在地
- 東京都渋谷区神山町25-12
- 交通
- 千代田線「代々木公園駅」駅徒歩10分
小田急線「代々木八幡駅」駅徒歩10分
井の頭線「神泉駅」駅徒歩11分
山手線他「渋谷」駅徒歩18分 - 販売価格
- 18,200万円
- 間取り
- 3LDK
- 専有面積
- 81.10㎡
- 管理費
- 24,100円
- 修繕積立金
- 46,530円
- その他費用
- 100円
- 現況
- 空室
- 構造
- RC造 4階建て
- 所在階
- 2階
- 築年月
- 1997年5月
- 総戸数
- 20戸
- 施工会社
- 清水建設
- 管理会社
- 三菱地所コミュニティ
- 管理形態
- 全部委託 日勤管理
- 駐車場
- 月額 35,000円
- 駐輪場
- 無償
- 取引態様
- 仲介
- ペット飼育
- 可
- POINT
- 管理状態良好 / 3駅以上利用可 / 2沿線以上利用可 / バス便利! / 住環境押し / 公園が近くにあります / 近くにコンビニあります / 大通りが近い / 新耐震基準適合 / フラット35 / ペット可 / オートロック / 宅配ボックス / エレベーター / 低層マンション / 中古マンション / 渋谷区 / 井の頭線 / 神泉 / 小田急線 / 代々木八幡 / 千代田線 / 代々木公園
(周辺施設)
・セブンイレブン 神山店 (33 m)
・セブンイレブン 渋谷富ヶ谷2丁目店 (292 m)
・マルエツ プチ 富ヶ谷一丁目店 (511 m)
・肉のハナマサ 富ヶ谷店 (524 m)
・富ヶ谷公園 (158 m)
・渋谷区立松濤中学校 (285 m)
他の物件を探す
株式会社シンプルエスト
営業時間 10:00~20:00
定休日 水曜日
京王新線「幡ヶ谷」駅北口徒歩2分
東京都渋谷区幡ヶ谷2-6-5 梅村ビル7階
営業時間 10:00~20:00
定休日 水曜日
京王新線「幡ヶ谷」駅北口徒歩2分
東京都渋谷区幡ヶ谷2-6-5 梅村ビル7階
LINEでお問い合わせ







スタッフコメント
2階部分、角住戸!専有面積81.10㎡の広々3LDKタイプが新規内装フルリノベーションで登場!(2025年8月6日)